Exposé
Hausverkauf
Einzigartiges Mehrfamilienhaus mit großem, idyllischem Grundstück nahe Künstlerstadt Gmünd
1976
Baujahr
302 m²
Wohnfläche
8.895 m²
Grundstück
12
Zimmer
598.000 €
Kaufpreis
Keine Maklerprovision
Verfügbarkeit
ab sofort
Standort
A-9861 Eisentratten
Krems in Kärnten
Zum Verkauf gelangt dieses geräumige Mehrfamilienhaus mit einem großzügigen und traumhaften Grundstück mit Pool.
Es befindet sich in sehr guter, sonniger, dörflicher Randlage, nahe der Künstlerstadt Gmünd.
Genießen Sie die ländliche Idylle, eigene Gärten, den Naturblick auf den eigenen Wald und das Plätschern des Bächleins, welches im hinteren Teil des Grundstückes fließt.
Das Haus wurde im Jahre 1976 im Landhausstil in Massivbauweise errichtet und hat seine ursprüngliche Struktur und Authentizität bewahrt. Wollen Sie das wahre Potential der Immobile maximieren, finden Sie eine ideale Basis vor, um mit Renovierungsarbeiten ihr eigenes, kleines Paradies zu schaffen.
Die Liegenschaft bietet Raum für eine Großfamilie, Möglichkeiten zur Vermietung oder zur Kombination aus beidem.
In der Vergangenheit diente sie als Frühstückspension, später zur Vermietung von Appartements und Garconnieren.
Die Liegenschaft erstreckt sich über eine Gesamtfläche von ca. 8.895 m2 und präsentiert sich als eine vielseitige Immobilie, die verschiedene Nutzungsmöglichkeiten bietet. Das Grundstück mit seinen unterschiedlichen Flächenanteilen beinhaltet Gärten, Wald und ein angrenzendes unbebautes Bauland, das Potential für zukünftige Entwicklungen oder Erweiterungen bietet.
Ebenso bietet es im kleinen Maßstab ausreichend Platz für die Haltung von Tieren wie z.B. Schafen.
Eine eigene, asphaltierte Zufahrt führt direkt zum Haus, schafft, ebenso wie der Wald, Abstand zur Nachbarschaft und verleiht Privatsphäre.
Erdgeschoss
Im Erdgeschoss erwartet Sie ein gemütliches Wohnzimmer, das viel Platz für gesellige Zusammenkünfte vor dem Kamin bietet. Es bietet, wie auch die angrenzende Küche, Zugang zur Terrasse und zum Garten mit Pool. Ein Zimmer mit Terrasse, ein kleines Zimmer, Vorhaus, Badezimmer und ein separates WC befinden sich ebenfalls in diesem Geschoss.
Wohnzimmer
Geräumiges Wohnzimmer (knapp 40 m2) mit Kamin und Zugang zur Terrasse
Küche
Helle Küche mit Speis, Terrassenzugang und Nachmittagssonne
Schlafzimmer
Schlafzimmer mit Morgensonne und Terrassenzugang
Bad und WC
Bad und WC getrennt und mit Fenstern
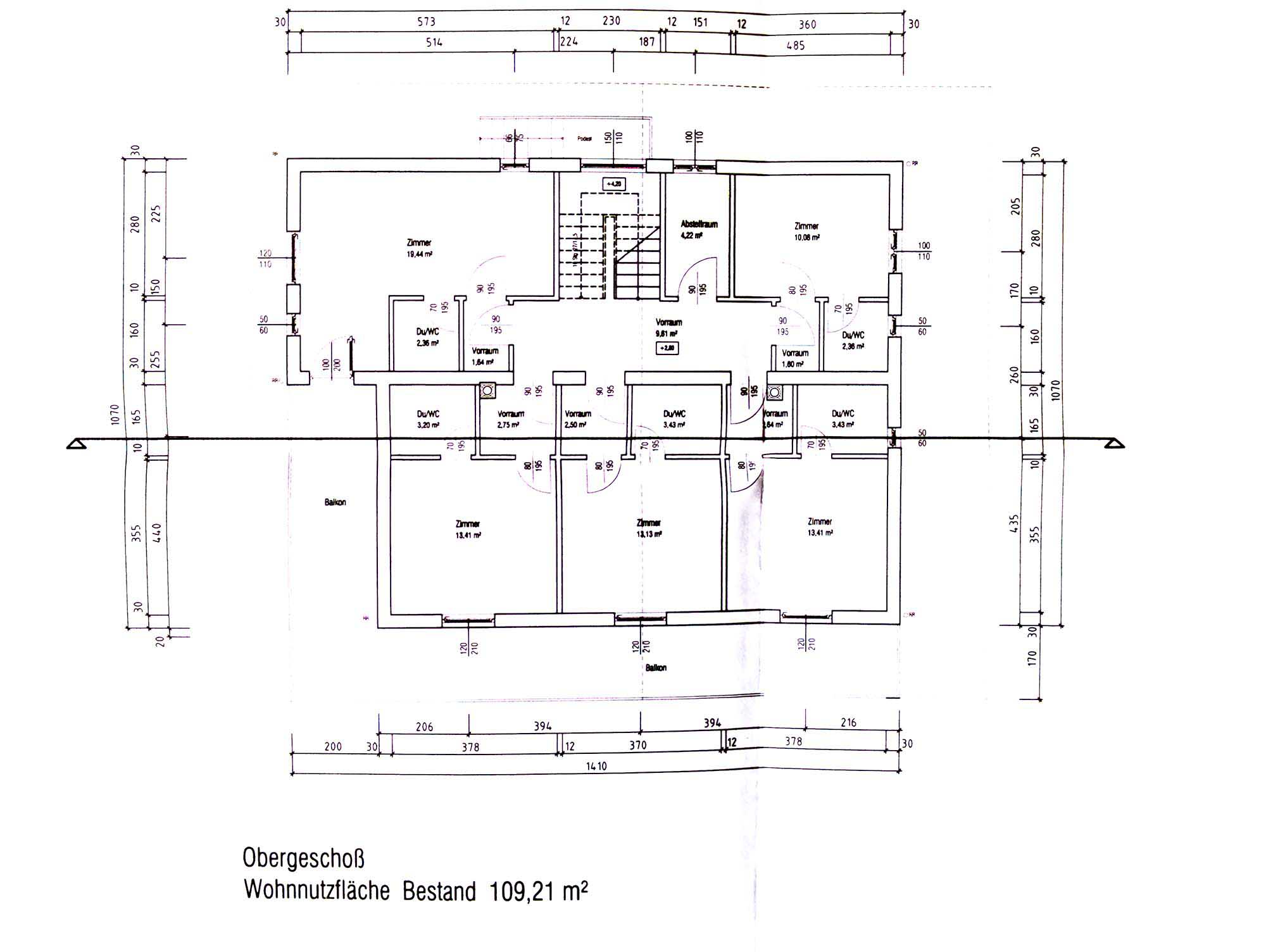
1. Stock
Hier finden Sie 2 Appartementzimmer mit Küche, Badezimmer mit Dusche und WC, sowie 2 Schlafzimmer mit Bad und WC, die jeweils mit einem überdachten Balkon auf der Südseite oder Westseite ausgestattet sind. Diese bieten einen malerischen Ausblick auf das Grundstück und die umliegenden Berge. Darüber hinaus steht ein zusätzliches Zimmer mit eigenem Badezimmer zur Verfügung.
2 Appartements
2 Appartementzimmer mit Küchenzeile und Badezimmer (Dusche und WC)
3 Schlafzimmer
mit Badezimmer (Dusche und WC)
Großer Eckbalkon
mit malerischem Ausblick auf das Grundstück und die umliegenden Berge.
Balkonzugang
4 von 5 Zimmern mit Ost/Süd- oder Süd/Westbalkon
2. Stock
Im Dachgeschoss sind drei Garconnieren vorhanden, wovon zwei über überdachte Balkone verfügen und nach Süden ausgerichtet sind. Ein zusätzliches Einzelzimmer bietet Flexibilität. Beide Obergeschosse bieten eine praktische und gut durchdachte Raumaufteilung.
2 große Zimmer
mit Küchenzeile, Badezimmer (Dusche/WC), Balkonzugang und Dachfenster
1 Zimmer
mit Küchenzeile, Badezimmer (Dusche/WC) und Dachfenster
1 Einzelzimmer
mit Waschbecken und separatem WC
Zugang zum Dachboden
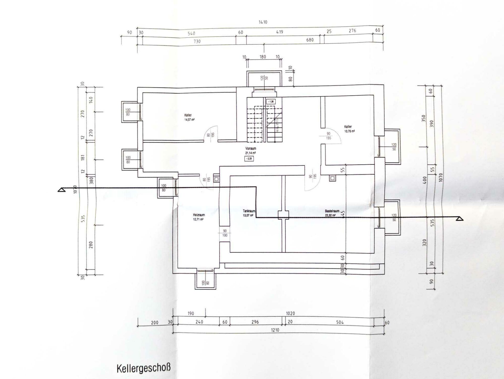
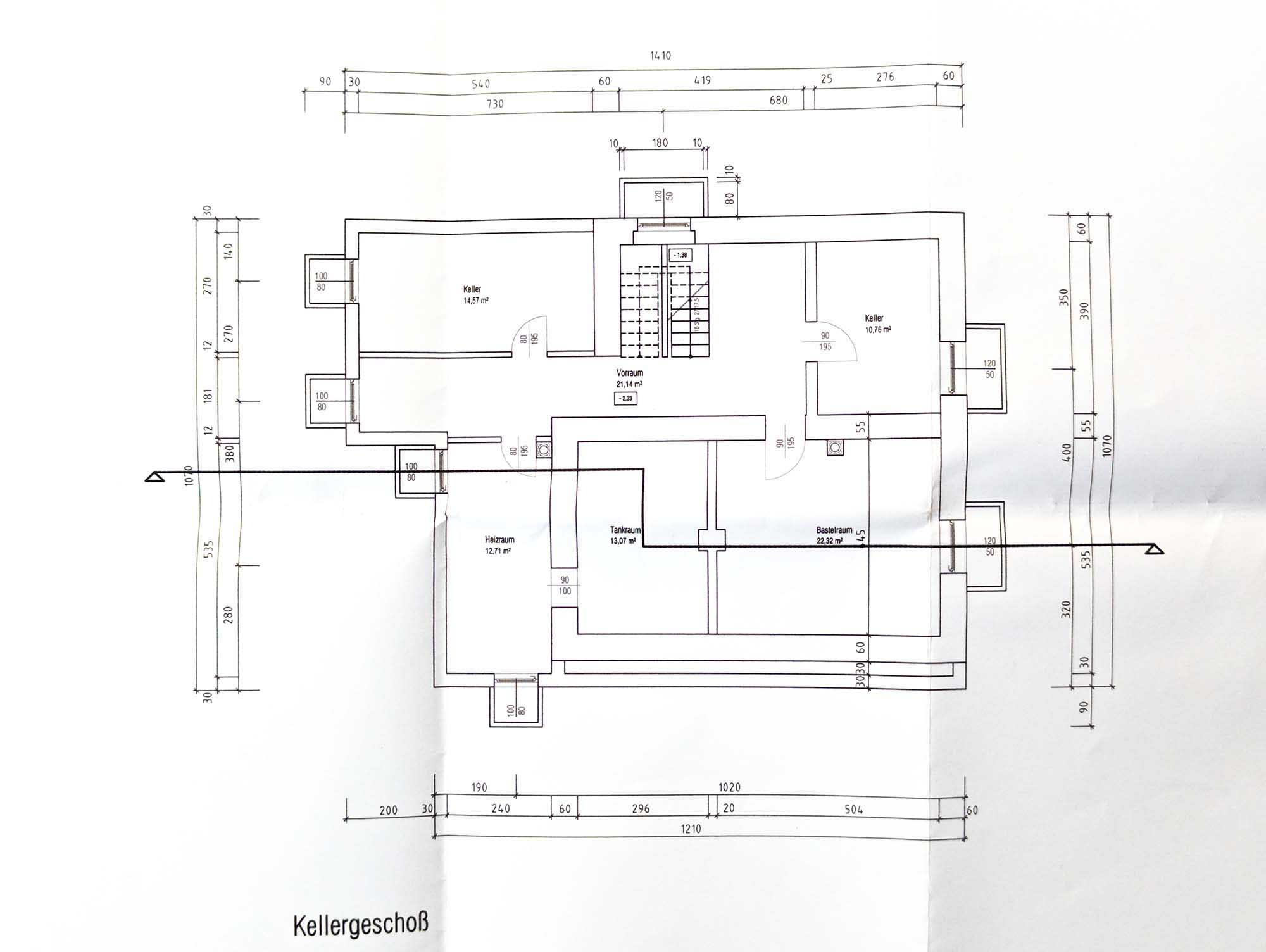
Keller
Im vielseitig nutzbaren Keller befindet sich eine 2006 installierte Pelletsheizung. Insgesamt 4 Räume im Keller können flexibel an Ihre Bedürfnisse angepasst werden und bieten Platz für Lagerung, Hobbys und Wäsche.

Heiztechnik
Pelletsheizung 2006 installiert, Lagerraum für Pellets
Stauräume
Viel Platz zum Verstauen
Hobbyräume
als Werkstatt, für Fitness, als Weinkeller...
Waschküche
Grundrisse
Grundstück
Viele Plätze zum Verweilen und Entspannen im großen Garten, mit viel Platz für Gemüseanbau und Tierhaltung, umgeben von üppiger Natur. Prädestiniert für gesellige Zusammenkünfte im Rahmen von Poolpartys, sommerliche Grillfeste, gemütliche Abende am Lagerfeuer oder fröhliche Familienfeste. Durch Abstand zu den Nachbargrundstücken entsteht Ihre persönliche Rückzugsoase. Auch Flächen für bauliche Erweiterungen sind hier vorhanden.































